Jüdisches Museum Wien

Wettbewerbsbeitrag

Facts

Auslober

Ort

Planung

JMW

Wien

1995

Projektleitung

Zusammenarbeit mit

Mitarbeit

Gustav Pichelmann

Wilfried Wang

Peter di Carlo

Beatrix Donaubauer

Michael Hoche

Lars Kordetzky

Susanne Nowak

Yehuda Safran


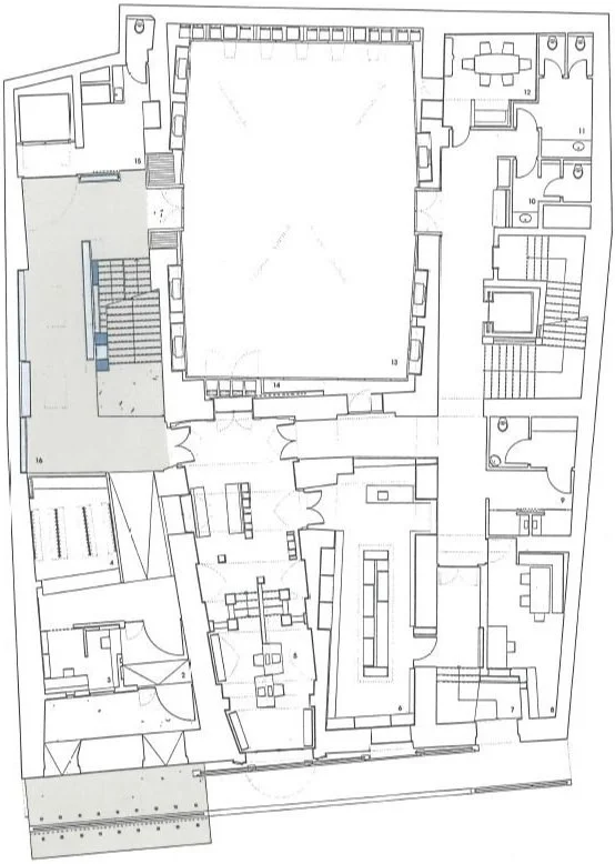
Dem vorliegenden Projekt für das jüdische Museum der Stadt Wien liegt die Annahme zugrunde, dass Architektur dem Betrachter nur dann bewusst wird, wenn sie ihn in seinen Bewegungen und Reflektionen leitet und anregt - durch Fassade, Stiegen und Verbindungswege, um von einem Raum in den anderen zu gelangen. Es wurde daher eine Reihe bzw. Abfolge “neutralerer Räume” konzipiert, die einerseits die extrem betonte und massive Erscheinungsweise des Gebäudes konterkarieren und andererseits möglichst großen Nutzen aus dieser ziehen sollen.

 Vor dem historischen Bestandsgebäude ist eine „aufgebrochene“ auf wie verschiedenen Ebenen verlaufende Mauer vorgesehen, die gleichzeitig den neuen Eingang betont und die neue Nutzung des Gebäudes zur Straße lesbar macht.

Ein neues großes Stiegenhaus durchdringt alle Geschoße, verbindet die Studiensammlung im Keller mit dem obersten Plateau, dem „offenen Raum“ direkt unter einem Oberlicht im Dach. In und entlang dieser “Stiegensäule” ist die kulturhistorische Schausammlung der Dauerausstellung untergebracht.


Team